3 szobás kertes ház Orosházán eladó

10799 Nyomtatás Ajánlás Facebook

3 szobás kertes ház Orosházán eladó

Az eladásra kínált, polgári stílusú családi ház Orosháza kedvelt városrészén helyezkedik el a központtól gyalog 5-10 percre.
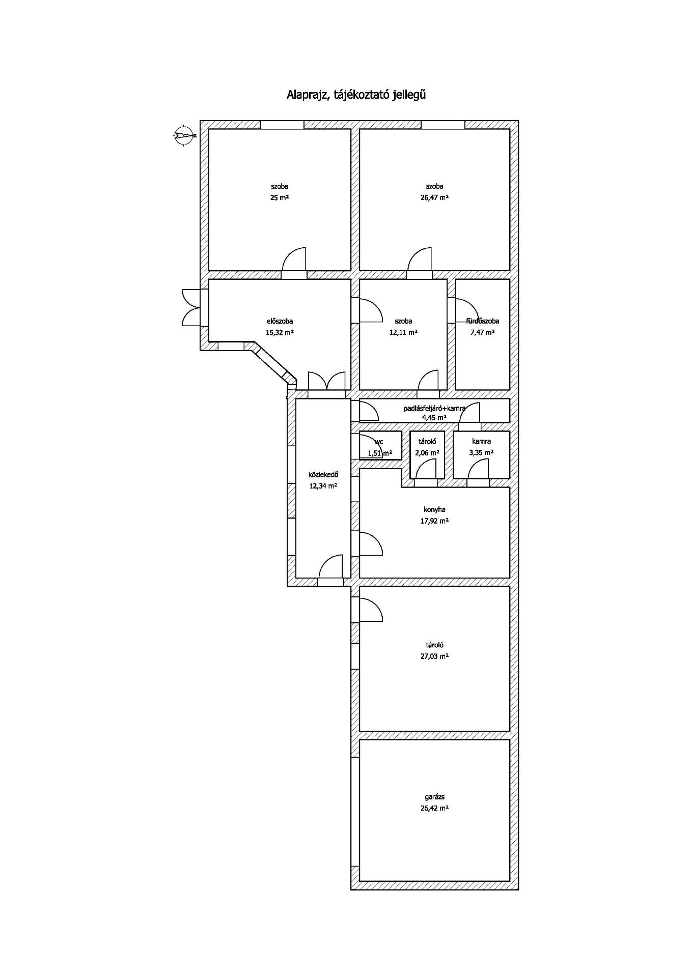
A háromszobás tágas, napos 129 m2-es lakóépület korából adódóan minimum esztétikai felújítást igényel.
A szobákban hajópadló és parketta padozat található. A parketta szép állapotban van. Vizes helyiségekben mozaikpadló burkolat van. A ház tégla építésű, aláfalazott, szigetelt. Az utcafronti részen kicserélték az ablakokat fa nyílászárókra.
Az otthon melegéről központi fűtés gondoskodik, amely vegyes tüzelésű kazánnal és gázkazánnal is működik. A szobákban, konyhában elektromos falipanelek biztosítják a meleget, melyek a 3 KW-os napelem hozzájárulásával díjmentesen, magas hőmérsékletet biztosítanak. A ház különböző részein 6 db biztonsági kamerát is felszereltek.
A házban három szoba , konyha, kamra, fürdőszoba és wc kapott helyet. A helyiségek elosztásából adódóan, felújítás esetén, funkciójukat több változatban is át lehet alakítani. A lakórész egy fedélszék alatt, egy kamrával, garázzsal és egy nagy tárolásra alkalmas helyiséggel folytatódik. Az egész melléképület együttes jó állapotban van.

Az udvar intimitását a beláthatatlan kerítés biztosítja. Rendezett, virágos kertrész emeli a kellemes hangulatot.
Egy bő termésű, gondozott, hatalmas szőlőlugas borítja az első kertrészt. Az udvaron található egy góré, ólak és egy fúrt kút. A hátsó kert veteményesnek és további sok-sok gyümölcsfának ad helyet. Ez a különleges régi hangulatú, tágas ház és a rendben tartott udvara együtt egy igazi értéket képvisel.
Amennyiben mindig egy ilyen stílusú otthonra vágyott, hívjon!
Vevőink részére a szolgáltatásunk ingyenes.

Restály Éva
PRÉMIUM

Restály Éva

5 éve a Városi Ingatlaniroda tagja
Ingatlanértékesítő
Békéscsaba
+36 (30) 571 9454
Észrevétel a hirdetéssel kapcsolatban
Egy ingatlanos naplója