BEFEKTETŐKNEK JÓ HÍR!

31369 Nyomtatás Ajánlás Facebook

Befektetőknek jó hír!

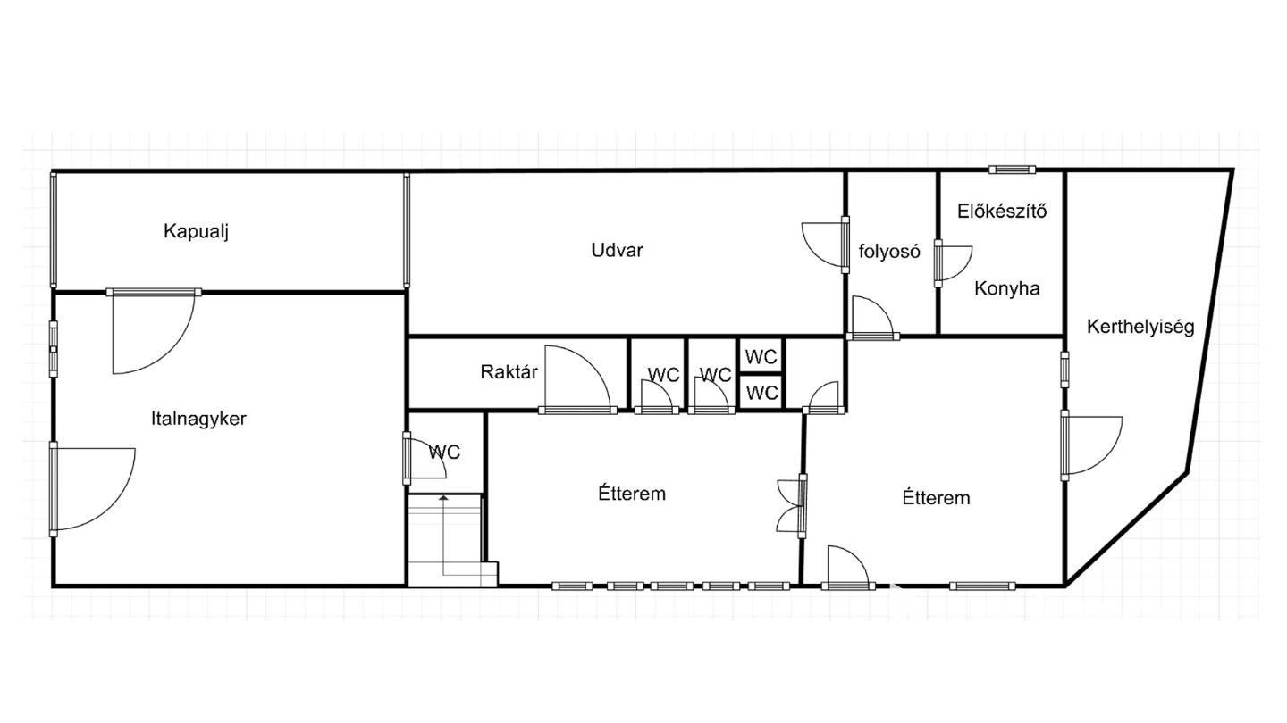
Hódmezővásárhelyen jelenleg is működő vendéglátó és üzlethelyiség eladásra vár.
A kétszintes épület alsó szintjén kb. 100 főt befogadó étterem található, mely az előírásoknak megfelelő konyhával, és a hozzátartozó helyiségekkel rendelkezik.
Az étterem alkalmas lakodalmak, üzleti, családi és egyéb rendezvények lebonyolítására.
Az alsó szinten továbbá söröző és parkosított kerthelyiség is megtalálható.
A felső szinten 5 szobás panzió kapott helyet, melyben minden szobához saját fürdőszoba és mosdó tartozik.

Az épület elkülönített részén jelenleg ital nagykereskedés működik.

Ha érdekelik a részletek elmondom, megmutatom, hívjon bátran nem zavar.

Érdeklődni:
Lászlóné Nagy Katalin
+36 30 264-7338

Lászlóné Nagy Katalin
PRÉMIUM

Lászlóné Nagy Katalin

6 éve a Városi Ingatlaniroda tagja
Ingatlanértékesítő
Hódmezővásárhely
+36 (30) 264 7338
Észrevétel a hirdetéssel kapcsolatban
Egy ingatlanos naplója