Családi ház gondos bérlőt keres

404 Nyomtatás Ajánlás Facebook

Nagykanizsa kertvárosi részében kiadó családi ház kínál kényelmes lakhatást. Az ingatlanon két lakásos ház található,de a lehetőség csak az egyikre vonatkozik. A másik ingatlan rész teljesen lezárt.
A telken garázs is rendelkezésre áll,de az udvarban is van lehetőség parkolásra.
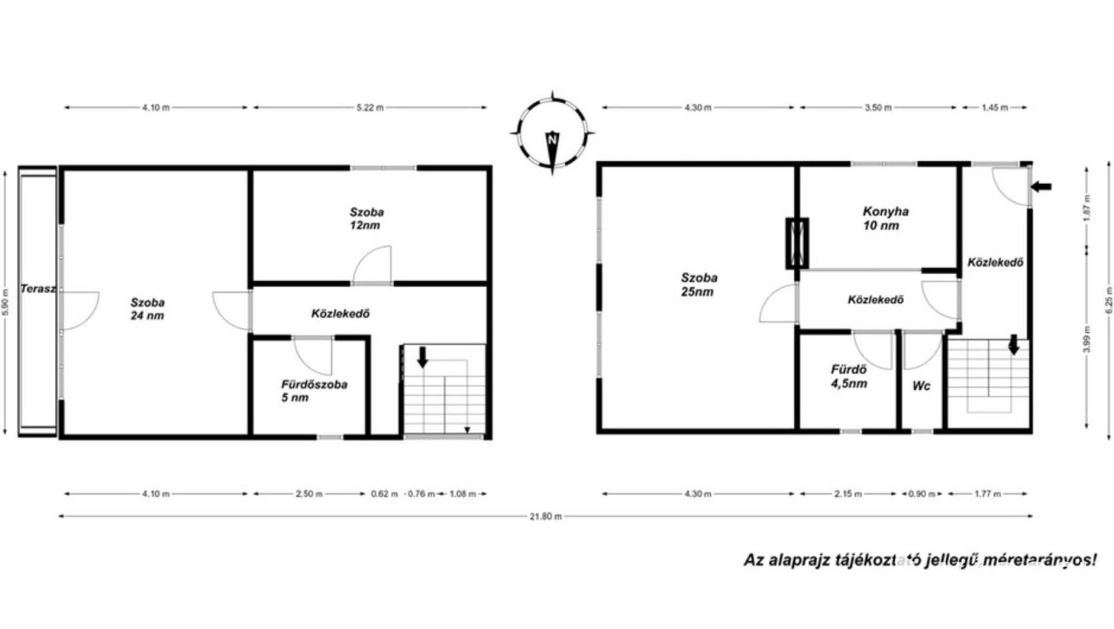
A 95 nm-es lakótér két szinten található. Alul egy nagy nappali,konyha ,külön fürdő és wc,felül két szoba és egy felújított fürdő-wc szolgálja a lakókat. Fűtést konvektorok biztosítják,de a hidegebb hónapokban lehetőség van a cserépkályhát is működtetni.
A helyiségek keleti és déli fekvésűek így az ingatlan egész nap világos és barátságos hangulatú.A szobákban fa parketta borítja a padlót,máshol járólap van.
A felső szinten a nagyobbik szobából nyílik az erkély .De egy kávét elfogyasztani a bejáratnál lévő déli kis teraszon is kellemes időtöltés.
1 perc gyalogos távolságra van a buszmegálló,de a ház egy csendes,kis forgalmú utcában található.Az udvara pedig pont annyi gondoskodást igényel,ami még kikapcsolódás és nem munka.

Kisállat megbeszélés szerint tartható!
Olyan bérlő jelentkezését várjuk,aki gondoskodó lakója lenne az ingatlannak egy családi ház előnyeivel és a vele járó feladatokkal együtt !
A bérlő választás joga mindenkor a tulajdonosé!
Egy havi bérleti díjjal és két havi kaucióval,minimum 1 évre szóló közjegyzői szerződéssel költözhető!

Hosszúné Jakab Judit
PRÉMIUM

Hosszúné Jakab Judit

5 éve a Városi Ingatlaniroda tagja
Ingatlanértékesítő
Nagykanizsa
+36 (30) 586 7920
Észrevétel a hirdetéssel kapcsolatban
Egy ingatlanos naplója