Debreceni, befejezésre váró luxus családi ház eladó!!!

9109 Nyomtatás Ajánlás Facebook

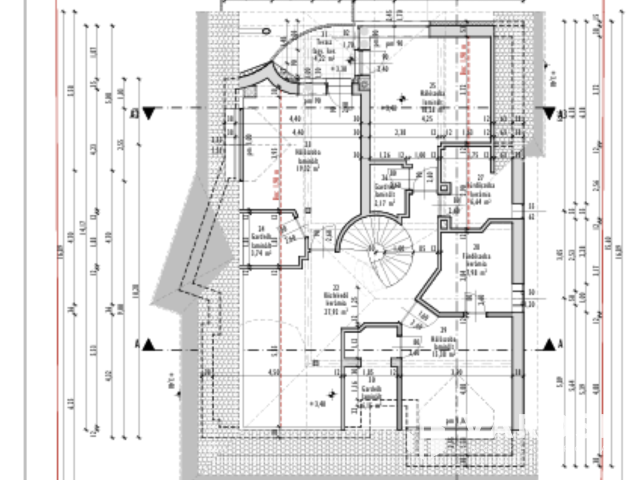
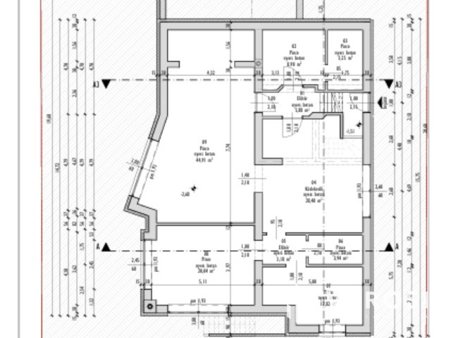
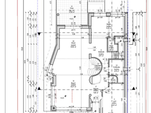
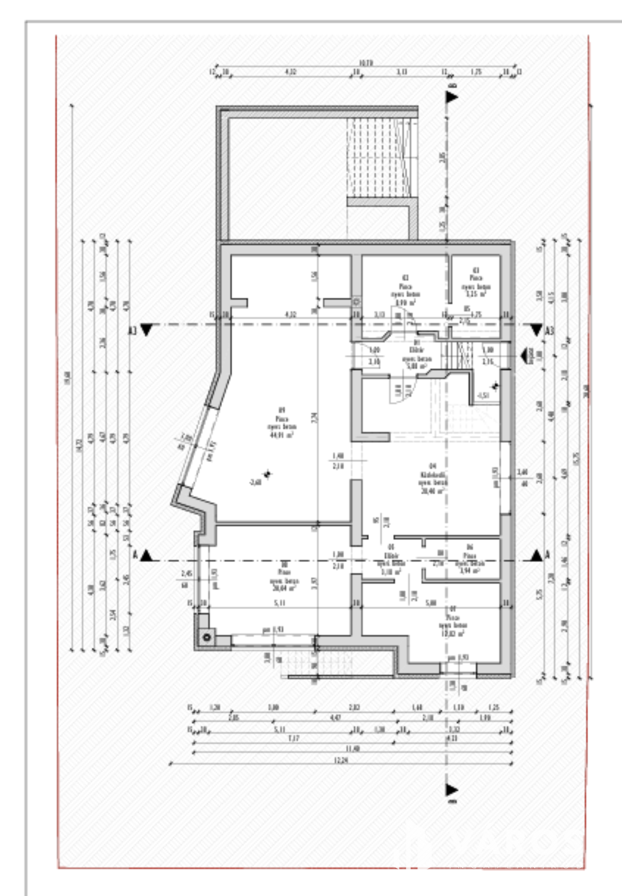
Debrecen szép kertvárosi környezetében, a Kincseshegy városrészen, 360 nm-es szerkezetkész 4 szoba nappalis 3 szintes ingatlan eladó! A ház teljesen alápincézett, ahol 7 kisebb nagyobb helyiség található. A földszinti részen, egy közel 60 nm-es hatalmas nappali étkező van, mellette 18 nm-es konyha kamrával, fürdőszoba külön wc-vel, és egy 15 nm-es szoba található. A felső szinten 3 nagyméretű hálószoba van, mindegyik saját gardróbbal, 2 fürdőszoba, és egy szép világos nappali rész van. A ház befejezéséhez, teljesen friss jogerős építési engedélyek vannak, így azonnal elkezdhető a befejezés, és egy álomszép luxus otthont lehet belőle varázsolni. A telken található még egy 80 nm-es dupla garázs, melynek az egyik részében, egy egyszobás garzon lakrész is rendelkezésre áll. Érdemes megnézni, rengeteg fantázia van az ingatlanban!!!

További információkért és megtekintésért keressen bizalommal!
TRIPSÓ TIBOR
+36 30 942 5373
Prémium ingatlanértékesítő
Városi Ingatlaniroda
Debrecen

Tripsó Tibor
PRÉMIUM

Tripsó Tibor

10 éve a Városi Ingatlaniroda tagja
Ingatlanértékesítő
Debrecen
+36 (30) 942 5373
Észrevétel a hirdetéssel kapcsolatban
Egy ingatlanos naplója