Eladó egy sokoldalúan hasznosítható ingatlan Orosházán!

2092 Nyomtatás Ajánlás Facebook

Orosházán eladó egy statikailag kiváló állapotú, téglaépítésű, többfunkciós ingatlan, amely kiváló lehetőségeket kínál vállalkozók, befektetők vagy akár többgenerációs család számára is. Az épületegyüttes ipari, kereskedelmi és lakófunkciókat is magában foglal, így számos célra kialakítható, használható.
Az ingatlan jellemzői:
Főépület:
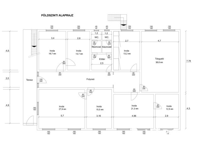
- Földszint: 7 db irodahelyiség, tárgyaló, mosdók - tökéletesek ügyfélfogadásra, üzleti célokra. (200 nm)
- Emelet: 2023-ban felújított, modern lakás 3 szobával, étkezős konyhával (100 nm) – akár saját otthonnak, akár kiadásra is alkalmas.
- A tetőtérben további 200 nm áll rendelkezésre, amely igény szerint lakás, iroda vagy más funkció kialakítására is alkalmas.
Melléképület:
- Az 1531 nm-es telken két tágas garázs helyezkedik el, amelyek közül az egyik szerelőaknával is felszerelt. Emellett egy raktár és egy plusz lakrész (86 nm) is rendelkezésre áll. Tetőzete felújítva!
Az udvaron továbbá 5 mobil garázs található, amelyek külön-külön is értékesíthetők!
A parkolás nem gond! Az utcán parkolók vannak kialakítva, így az ingatlan ügyfélforgalmat lebonyolító tevékenységekre is kiváló.

Hasznosítási lehetőségek:
- Ingatlanbefektetés - lakások és garázsok kiadása. Társasházzá alakítható, és akár 5 db külön lakás is kialakítható az ingatlanból.
- Irodaház akár több vállalkozás számára is.
- Képzési központ vagy oktatási helyszín.
- Egészségügyi és szolgáltatói célokra, pl. fogorvosi rendelő, magánklinika vagy orvosi rendelő, gyógyászati központ…
- Szépségipari szolgáltatások, szépségklinika, kozmetikai központ, fodrászat stb.
- Autószerviz, logisztikai központ, raktározási és szállítmányozási bázis.
- Műhely vagy stúdió művészeknek, alkotóknak.

További információért és időpont egyeztetéssel kapcsolatban forduljon hozzám bizalommal! Külső fotókat kérésre emailben küldök.
Irodánk teljeskörű segítséget nyújt az adásvétel sikeres lebonyolításában. Tapasztalt és megbízható ügyvéddel, energetikussal és hitelügyintézővel állunk rendelkezésére!

Koszecz Andrea
PRÉMIUM

Koszecz Andrea

5 éve a Városi Ingatlaniroda tagja
Ingatlanértékesítő
Békéscsaba
+36 (70) 310 4451
Észrevétel a hirdetéssel kapcsolatban
Egy ingatlanos naplója