ELADÓ ipari ingatlan 4 db lakással és 2 db műhellyel!

21560 Nyomtatás Ajánlás Facebook

Megvételre kínálok Budapest XX. kerületében egy 2 szintes, téglaépítésű ipari ingatlant.
Az ingatlanhoz összesen 3 db lakás, 1 db iroda, és 2 db autóműhely tartozik.

Remek befektetési lehetőség, hiszen a lakások bérelhetők, melynek havi bérleti díja 600-700 Euro/lakás. Jelenleg az egyik műhely és az iroda van kiadva.
A tetőn elhelyezésre került egy szolgáltatói antenna, melynek bérleti díja éves szinten 9200 Euró. Ez azt jelenti, hogy 10 év alatt 92.000 eurót megtérít az ingatlan vételárából.
Az ingatlan vételára 630 ezer euró.

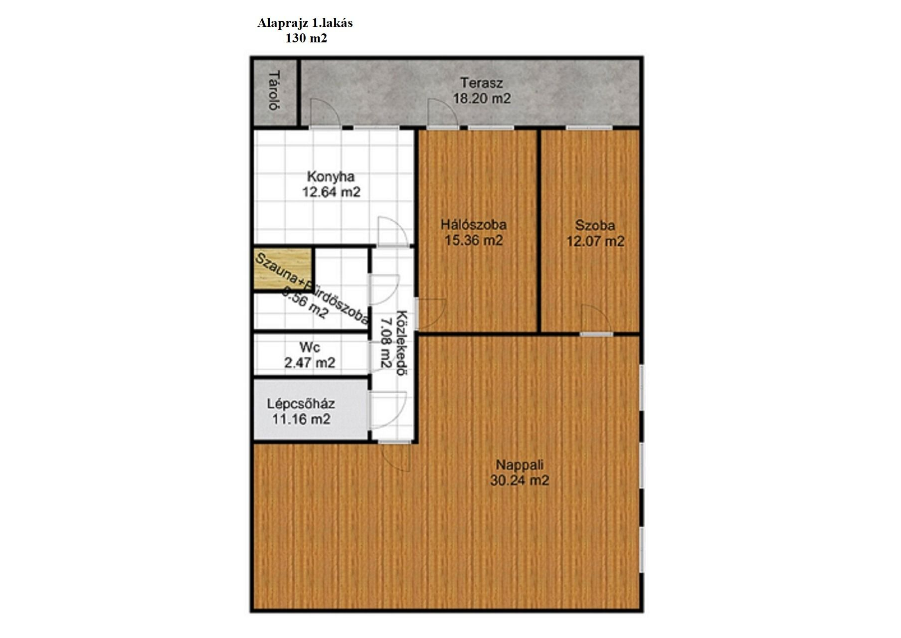
Az ingatlan 2 külön helyrajzi számon található. Az első épületben 1 db 130 m2-es lakás, 1 db 130 m2-es iroda, és egy 150 m2-es autóműhely került kialakításra.
A másik épületben egy 67 m2-es lakás, egy 55 m2-es lakás és egy 67 m2-es műhely található.
Kizárólag egyben eladó!

Összesen 14 szoba, 6 fürdőszoba, 1 szauna található az ingatlanban.
A teljes telek területe kb 690 m2.
A nyílászárók korszerűsített új műanyag nyílászárók, a villamoshálózat részleges felújítása megtörtént.

Parkolni az utcán ingyenesen lehetséges, illetve mindegyik lakáshoz jár egy nyitott kocsibeálló.
A közlekedés kiváló! 1 km-en belül szinte minden megtalálható. Kocsival a belváros maximum 30 perc.

Jelenlegi és leendő ügyfeleimnek díjmentes hitelügyintézést, ügyvédi tanácsadást kínálunk.
Energetikai tanúsítvány elkészítését rövid határidővel vállaljuk.

I offer to buy Budapest XX. district of a 2-storey, brick-built industrial property.
The property has a total of 3 flats, 1 office and 2 car workshops.

It is a great investment opportunity, as the apartments can be rented, with a monthly rent of 600-700 Euro / apartment. Currently, one workshop and office is released.
A service antenna has been installed on the roof, with an annual rent of € 9,200. This means you will be reimbursed € 92,000 from the purchase price of the property over 10 years.

The property has 2 separate topographical numbers. In the first building, 1 130 m2 apartment, 1 130 m2 office and a 150 m2 car workshop were built.
The other building has a 67 m2 apartment, a 55 m2 apartment and a 67 m2 workshop.
Only for sale!

There are a total of 14 rooms, 6 bathrooms and 1 sauna in the property.
The total area of ​​the plot is about 690 m2.
The doors and windows have been modernized with new plastic doors and windows, and the electricity network has been partially renovated.

It is possible to park on the street free of charge, and each apartment has an open parking space.
The transport is excellent! Almost everything can be found within 1 km. By car, the city center can be reached in 30 minutes.

We offer free credit administration and legal advice to my current and future clients.
We undertake to prepare an energy certificate with a short deadline.

Mátyás Szilárd
PRÉMIUM

Mátyás Szilárd

4 éve a Városi Ingatlaniroda tagja
Ingatlanértékesítő
Budapest
+36 (30) 246 9532
Észrevétel a hirdetéssel kapcsolatban
Egy ingatlanos naplója