Ha Gyula, ha vendéglátás, akkor BOLS!

7881 Nyomtatás Ajánlás Facebook

Vállalkozók figyelem! Eladóvá vált Gyula történelmi fürdőváros központjában, a sétáló utca mellett lévő ikonikus „BOLS” vendéglátó egység. Az ingatlan 1950-es években épült tégla falazatú, amelyet a jelenlegi tulajdonosa 1976 óta folyamatosan karban tartott és fejlesztett. Az épület együttes jó állapotú, amely több mint 22 éve és jelenleg is üzemel, mint étterem, pizzéria, italkimérő, illetve az emeleti részen 5 db. igényesen felújított, tágas apartman. A BOLS étterem és panzió az év mind a 365 napján üzemeltethető és üzemel is, mivel a város idegenforgalmi szempontból igen jelentősen látogatott az egész évben.
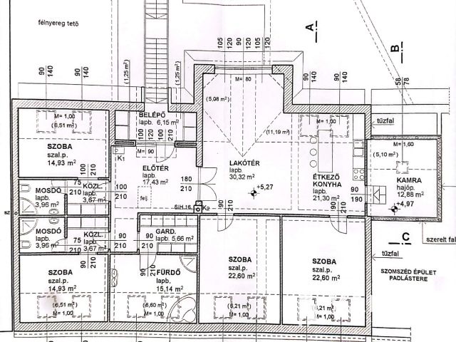
Az ingatlan földszinti részén lett kialakítva egy hangulatos és minden igényt kielégítő bárpult, egy éttermi vendéglátó rész, amely a kialakított szintén hangulatos galéria résszel közel 200 fő befogadásra alkalmas. A galéria rész ebből 104 fő befogadásra alkalmas, ahol a kialakításának köszönhetően zártkörű rendezvények lebonyolítására is tökéletesen alkalmas. A vendéglátó részen a közelmúltban lettek felújítva a vizesblokk (mosdó, WC) helységek is, amelyből 3 db. található az éttermi részen (férfi, női és mozgáskorlátozott). A vendéglátó egységhez tartozik egy hatalmas és modern eszközökkel felszerelt konyha, amely több részből áll, itt lett kialakítva egy pizza készítő, melegkonyha, előkészítő, mosogató, illetve több hűtő, raktár és mosdó helység is. A fűtésről 3 db gázkazán lapradiátorokkal, padlófűtéssel, a hűtésről klímaberendezések gondoskodnak. A vendéglátó részen az elektromos hálózat is korszerű, itt 3 x 72 A és ipari áram található.
Az épület komplexumnak két bejárata van. Az első bejárat a Kossuth utcára nyílik, ez a főbejárat, illetve a hátsó bejáraton a Pálffy utcáról közelíthetjük meg az udvari részt és egy modern függőfolyosón keresztül az emeleti részen kialakított modern és tágas 5 db. apartmant, melyek szintén modern és újszerű állapotúak és klimatizáltak. Az emeleti részen 32 A lett kialakítva, amely kényelmesen ellátja az apartmanokat.
Az ingatlanhoz tartozik továbbá a szomszédos részen 4 db. mélygarázs hely is, amelyek saját tulajdonjoggal rendelkeznek.
Az ár tartalmazza: Az étterem, bár, konyha teljes berendezését, konyhai eszközöket, felszereléseket, az apartmanok teljes berendezését, az üzemeltető betéti társaságot, engedélyekkel, beszállítói kedvezményekkel együtt.
Az ingatlan bővítése is lehetséges, mivel a közvetlen szomszédságában található épület is eladó.
Az ingatlan összes területe: 455 m2
A telek területe: 498 m2
Ammenyiben további információra lenne szüksége, vagy meg szeretné tekinteni az ingatlant hívjon bizalommal akár hétvégén is a 06 70 457-4392 telefonszámon.

Szentléleki Tamás
PRÉMIUM

Szentléleki Tamás

6 éve a Városi Ingatlaniroda tagja
Ingatlanértékesítő
Gyula
+36 (70) 457 4392
Észrevétel a hirdetéssel kapcsolatban
Egy ingatlanos naplója