Három üzlethelyiség Szentes központjában

7768 Nyomtatás Ajánlás Facebook

Szentes központjában 3 db külön álló üzlethelyiség egyben eladó.
Kitűnő befektetési lehetőség régóta működő üzletekkel, megbízható bérlőkkel.

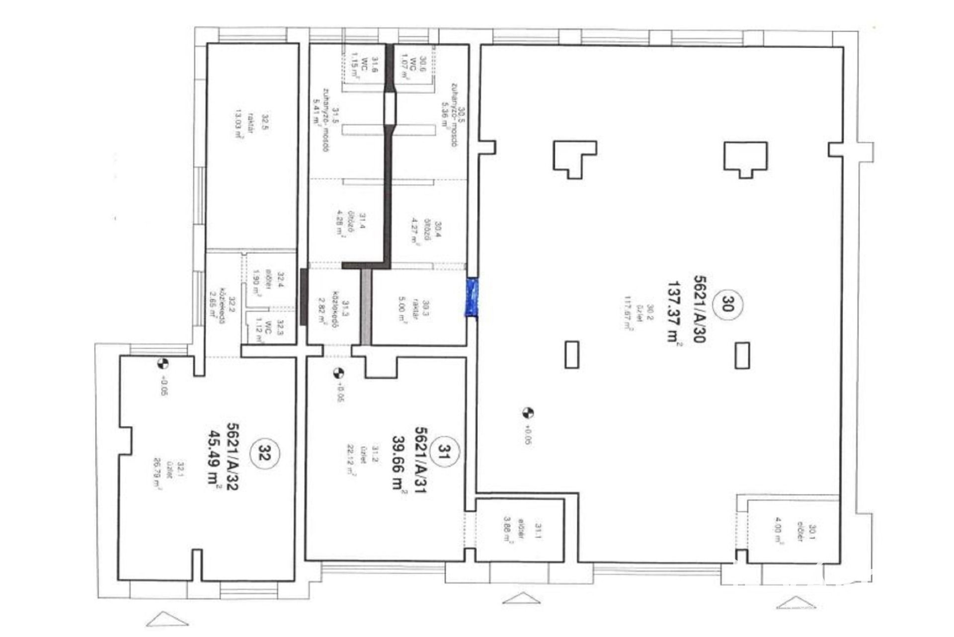
1.üzlethelyiség 137 m2
-eladótér 117 m2
-raktár
- öltöző
-WC
- mosdó
Fűtése gáz központi fűtés, villamoshálózata felújított.

2. üzlethelyiség 39,6 m2
-eladótér 22 m2
- öltöző,
-WC
-mosdó

3. üzlethelyiség 45,5 m2
-eladótér 26,8 m2
-raktár 13 m2
-öltöző
-WC
-mosdó

Mindhárom üzlet közvetlen utcai bejárattal rendelkezik. A két kisebb üzlet villamos almérőkkel van felszerelve.
A jelenleg üzemelő vállalkozások továbbra is bérelnék az üzlethelyiségeket.
Parkolási lehetőség az udvaron egy gépjármű részére adott, az utcán fizetős.

Elhelyezkedése miatt kiváló befektetés Szentes belvárosában.

Az ingatlannal kapcsolatos kérdéseivel keressen bátran, a hét bármely napján.
A 06 -30/60 66 502-es telefonszámon várom hívását, Mélykúti Ferenc.

Ügyfeleink számára irodánk teljes jogi hátteret, adás-vétellel kapcsolatos térítésmentes jogi tanácsadást biztosít.
Hitel ügyintézéssel, díjmentes hitelszűréssel és tanácsadással segítünk, hogy megtalálja az ön számára legkedvezőbb megoldást

Mélykúti Ferenc
PRÉMIUM

Mélykúti Ferenc

5 éve a Városi Ingatlaniroda tagja
Ingatlanértékesítő
Szentes
+36 (30) 606 6502
Észrevétel a hirdetéssel kapcsolatban
Egy ingatlanos naplója