Új építésű családi ház a természet ölelésében!

4749 Nyomtatás Ajánlás Facebook

Kedves Érdeklődő!

Eladó családi ház Szeged Újpetőfitelepen kulcsrakész állapotban!
A telken épülő mindkét ház elérhető, így az első vevő élhet a választás szabadságával! Ne hagyja ki a lehetőséget!

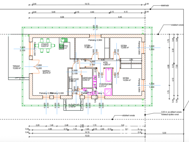
A családi ház alaprajza és műszaki tartalma napjaink igényeinek megfelelően lett megtervezve:

- Porotherm 44 X-therm Rapid tégla, dryfix kötéssel, hőszigetelés nélkül
(fal hőátbocsátási tényezője vakolattal együtt U=0,22W/m2, amely egy hőszigetelt falnak felel meg, vagy ezzel megegyező hőátbocsátási tényezőjű külső falszerkezet)
- 3 rétegű műanyag nyílászárók fehér színben
- szeglemezes tetőszerkezet 30 cm befújt szigeteléssel, beton cseréppel
- hőszivattyús fűtésrendszer padlófűtéssel
- napelem előkészítés
- villany: 3x16A
- 102 m2 nettó alapterület, nappali+3 hálószobás elrendezés
- 16 m2 terasz
- szúnyogháló és motoros redőny
- térkövezett autóbeálló
- teljesen körbekerített telek

Kulcsrakész műszaki tartalom tartalmazza:
- Belső ajtók és kilincsek egyedileg választhatók. Belső ajtó bruttó 120.000 Ft/db-ig, kilincsek 7.000
Ft/db-ig (WC, illetve fürdő helyiségnél WC-zárral).
- Hidegburkolás kerámialappal, szegély ugyanazon anyagból. Egység anyagár bruttó 6.000,- Ft/m2, hálósan rakva.
- Melegburkolás normál kopás-állóságú laminált parkettával, hozzá tartozó szegőléccel. Anyag egységár bruttó: 6.000 Ft/m2/ helyiségek közötti burkolatváltás eloxált sínnel kiépítve.
- Szaniterek összesen bruttó 1.000.000.- Ft értékben, ebben beleértendő a beépített wc tartály (Alcaplast típusú)
-Párkányok: Homlokzati ablakpárkányok, műanyag a nyílászárókkal harmonizáló színben. Belső párkányok a nyílászárók anyagával megegyező, rendszertartozék.
-A kapcsolók, konnektorok SCHNEIDER típusúak. A konyharész teljes gépesítés fogadására előkészített (tűzhely, sütő, mikrohullámú sütő, elszívó, mosogatógép).

Akár teljes okosotthon vezérlés kialakítása is kérhető a vevő igényeire szabva!

A most induló projekt keretében két ház épül a telekre egymás mögé, mindkét háznak kényelmes méretű 474 m2 telket biztosítva.
A telek szélén térkövezett szolgalmi úton történik a bejárás, a használati megosztásról ügyvéd által készített szerződés készül.
Szeged Újpetőfitelep csendes és zöldövezeti részén található ingatlan kiválóan alkalmas családosok számára, akik a természet közelében, csendes helyen, mégis a várostól elérhető távolságra tervezik berendezni életüket.

Az ingatlan forgalomtól mentes utcában található, ugyanakkor kiváló közlekedési lehetőségekkel rendelkezik, így mind autóval, mind tömegközlekedéssel könnyen megközelíthető.

További információért és időpont egyeztetéssel kapcsolatban forduljon hozzám bizalommal!

Elérhetőség:
Német Máté
+36-30/ 975-8764
nemet.mate@ving.hu

Német Máté
PRÉMIUM

Német Máté

8 éve a Városi Ingatlaniroda tagja
Karrierigazgató
Szeged
+36 (30) 975 8764
Észrevétel a hirdetéssel kapcsolatban
Egy ingatlanos naplója